Vente
		
			Terrain
			 à			Beaux
		
				
			55 500 â‚¬		  - Honoraires charge vendeur
			
	
	Beaux (43200)
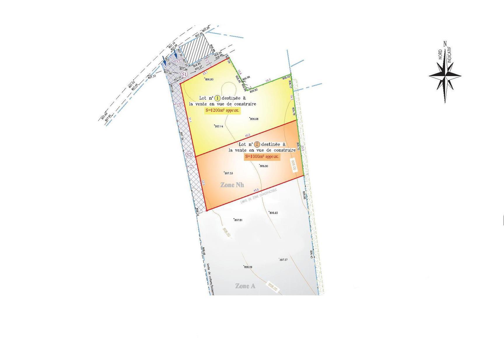
BEAUX 43200, à 11kms d'Yssingeaux. Village de COURENC. En EXCLUSIVITE, un TERRAIN CONSTRUCTIBLE de 3375m² (soit 16,50€ /m²). Construction libre, pas d'égout communal, prévoir micro-station ou filière compacte pour l'assainissement. VOIR RAPIDEMENT. Plus de renseignements sur notre site internet "POINAS IMMOBILIER". Contact Sylvain POINAS 06.37.78.24.79. Agent Immobilier immatriculé au RCS du Puy en Velay n°498 771 633 Réf:1439
Mandat : 1439
Diagnostic de Performance Énergétique (DPE)
Plus d'informations
- 
			Loi ALUR
			
- Statut du négociateur : Agent immobilier
 
 - 
			Conditions
			
- Honoraires à charge de : vendeur
 
 - 
			Superficies
			
- Superficie terrain : 3375 m²
 
 
Contactez nous
Pour plus d'informations sur cette annonce, n'hésitez pas à nous contacter
POINAS IMMOBILIER
Tel. : 04 77 20 20 30
				
			
		
		Annonce 2 /
			11	
	

						
  
Partagez cette page par e-mail avec vos amis!